
Mora Skidgymnasium
Mora — 2023
Bygglov och projektering med fokus på genomförbarhet
Relevant för byggföretag, fastighetsutvecklare och professionella beställare
Tydliga underlag för nästa steg i projektet
OM PROJEKTET
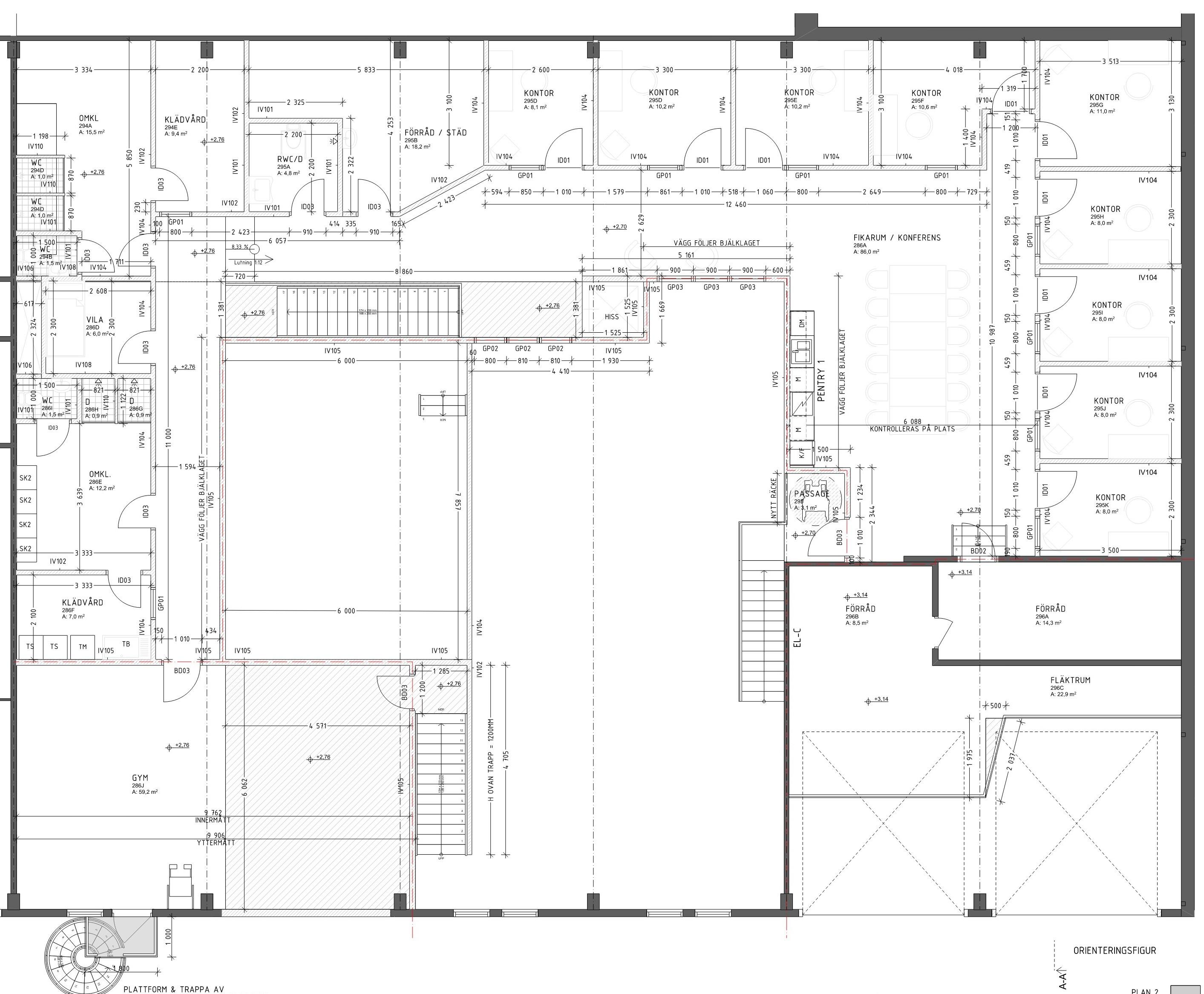
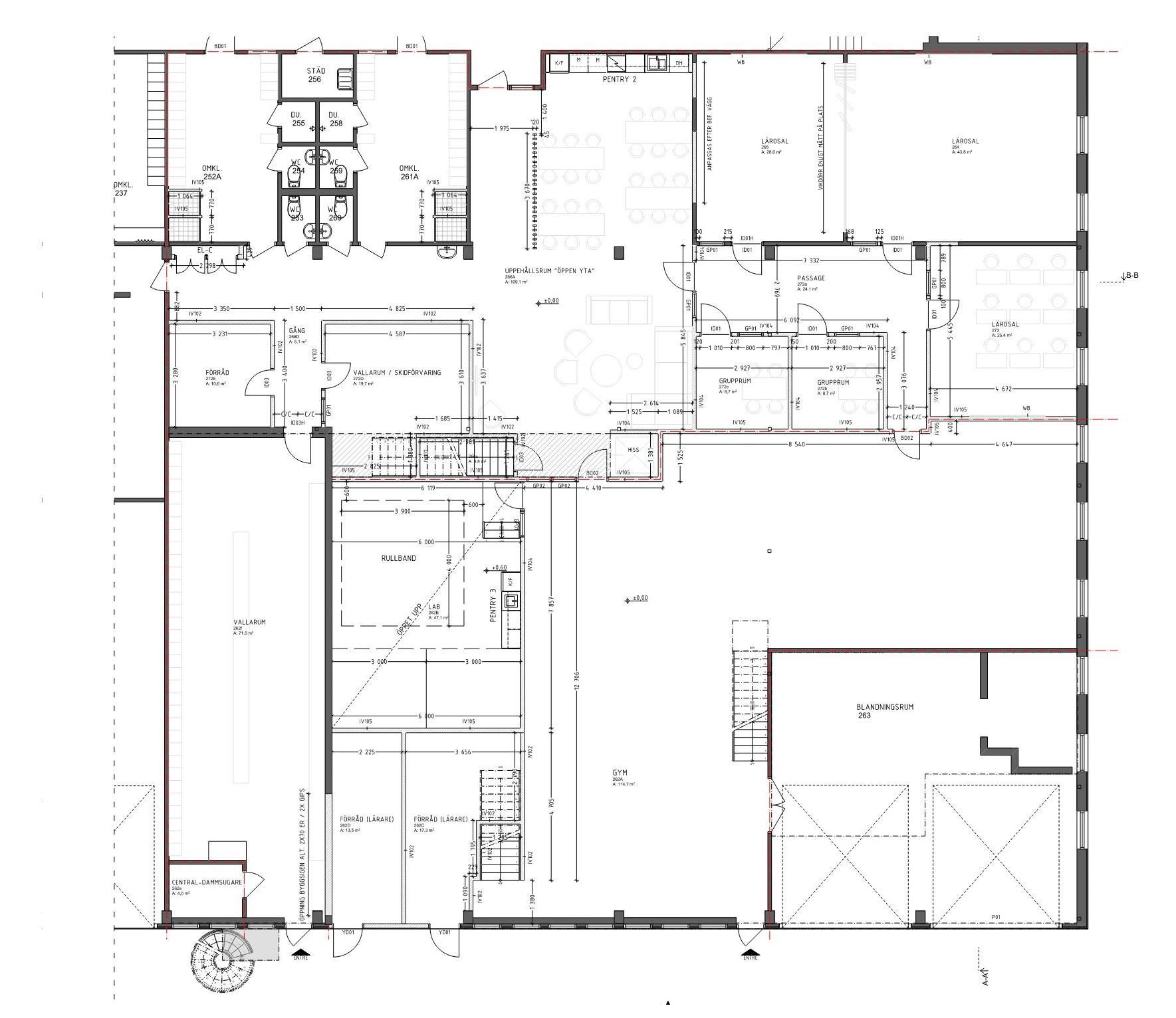
Vi ansvarade för projekteringen av ombyggnationen av Mora Skidgymnasium – en viktig utbildningsmiljö för framtidens elitidrottare inom längdskidåkning. Projektet innefattade anpassning av lokaler för både undervisning och träning, med fokus på funktion, hållbarhet och trivsam studiemiljö. Genom vår helhetslösning kunde vi skapa en modern och energieffektiv byggnad som möter dagens krav på tillgänglighet och framtida utvecklingsmöjligheter.
Söker ni hjälp med ett liknande projekt? Läs mer om våra tjänster, om bygglov och projektering eller kontakta oss direkt.
PROCESS
Det här projektet visar hur vi arbetar strukturerat från idé och analys till tydliga handlingar och nästa steg i genomförandet.
UNDERLAG
För beställare handlar värdet inte bara om gestaltning, utan om att få fram ett underlag som håller ihop mellan bygglov, projektering och genomförbar lösning.
BESTÄLLARPERSPEKTIV
Projekt som detta är särskilt relevant för byggföretag, fastighetsutvecklare och andra professionella beställare som behöver tydlig framdrift.
PROJEKTETS BETYDELSE
Ombyggnationen av Mora Skidgymnasium har skapat en modernare och mer funktionell miljö som stärker utbildningen av framtidens skidtalanger. Projektet bidrar både till skolans utveckling och till att Mora fortsätter vara en central plats för svensk längdskidåkning. Genom projekteringen har vi säkerställt hållbara lösningar som stödjer både elevernas behov och skolans långsiktiga vision.


INTRESSERAD AV ETT
LIKNANDE PROJEKT?
Berätta om era idéer — vi hjälper er att förverkliga dem.
Särskilt relevant för byggföretag, fastighetsutvecklare och professionella beställare som söker ett team som kan bidra med både arkitektur, bygglov och projektering.