
LSS Tureberg
Sollentuna, Stockholm — 2024
Bygglov och projektering med fokus på genomförbarhet
Relevant för byggföretag, fastighetsutvecklare och professionella beställare
Tydliga underlag för nästa steg i projektet
OM PROJEKTET
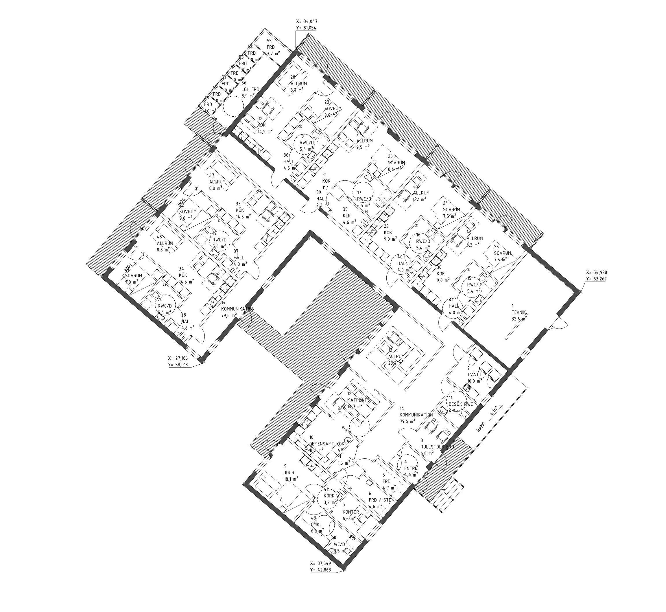
Vi har ansvarat för total projektering av LSS Tureberg, ett nytt gruppboende i Sollentuna. Projektet omfattar ca 550 m² och är utformat för att kombinera funktionalitet, trygghet och trivsel för de boende. Stor vikt har lagts vid tillgänglighetsanpassning, energieffektiva lösningar och en hemlik miljö som stödjer både självständighet och gemenskap.
Söker ni hjälp med ett liknande projekt? Läs mer om våra tjänster, om bygglov och projektering eller kontakta oss direkt.
PROCESS
Det här projektet visar hur vi arbetar strukturerat från idé och analys till tydliga handlingar och nästa steg i genomförandet.
UNDERLAG
För beställare handlar värdet inte bara om gestaltning, utan om att få fram ett underlag som håller ihop mellan bygglov, projektering och genomförbar lösning.
BESTÄLLARPERSPEKTIV
Projekt som detta är särskilt relevant för byggföretag, fastighetsutvecklare och andra professionella beställare som behöver tydlig framdrift.
PROJEKTETS BETYDELSE
LSS Tureberg är ett tryggt och modernt boende i Sollentuna, framtaget med fokus på tillgänglighet, hållbarhet och hemlik känsla. Projektet bidrar till att skapa en inkluderande miljö där de boende får ökad livskvalitet genom välplanerade ytor, ljusa bostäder och anpassade gemensamhetsutrymmen. Vår projektering säkerställde att både funktionalitet och trivsel förenades, vilket stärker kommunens vision om social hållbarhet och omsorg.













INTRESSERAD AV ETT
LIKNANDE PROJEKT?
Berätta om era idéer — vi hjälper er att förverkliga dem.
Särskilt relevant för byggföretag, fastighetsutvecklare och professionella beställare som söker ett team som kan bidra med både arkitektur, bygglov och projektering.