
KLAPPTRÄET 6
Stockholm — 2025
Bygglov och projektering med fokus på genomförbarhet
Relevant för byggföretag, fastighetsutvecklare och professionella beställare
Tydliga underlag för nästa steg i projektet
OM PROJEKTET
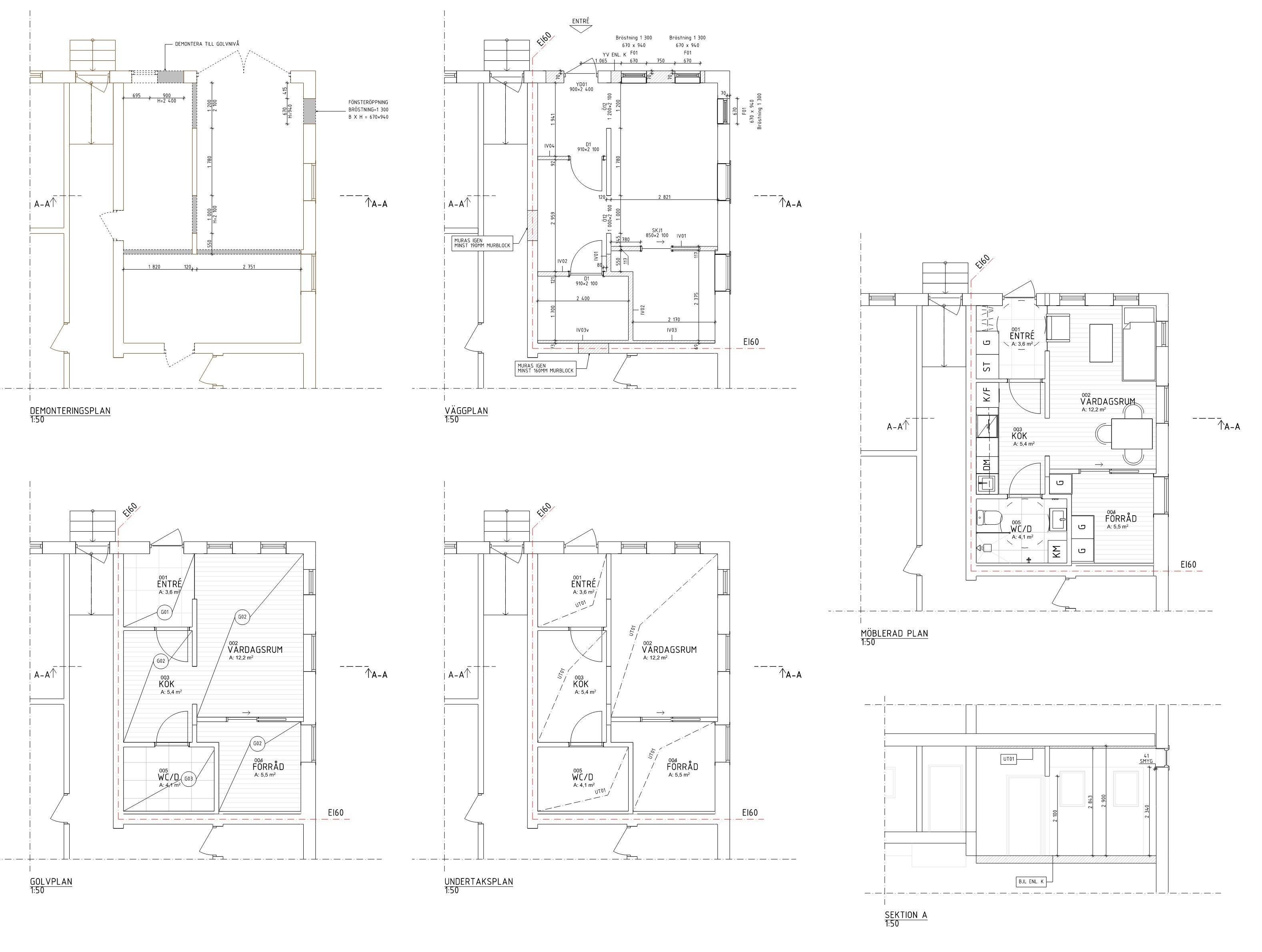
I projekt Klappträet 6 genomförde vi på FORMARK en total ombyggnation av ett tidigare garage till en unik och yteffektiv lägenhet. Med noggrann planering och omsorgsfulla materialval förvandlades den råa ytan till en exklusiv bostad med industriell karaktär. Projektet omfattade allt från planlösning och konstruktion till design av interiör och specialritade lösningar.
Resultatet är ett modernt hem med optimalt ljusinsläpp och en tydlig koppling mellan de sociala ytorna och den privata uteplatsen. Projektet inspirerades av liknande högkvalitativa omvandlingsprojekt, såsom lägenheten på Eknäsvägen 13 som kan ses här: Se referensprojekt på Hemnet.
Samtliga fotografier som visas i detta projekt tillhör Widerlöv Kungsholmen.
Söker ni hjälp med ett liknande projekt? Läs mer om våra tjänster, om bygglov och projektering eller kontakta oss direkt.
PROCESS
Det här projektet visar hur vi arbetar strukturerat från idé och analys till tydliga handlingar och nästa steg i genomförandet.
UNDERLAG
För beställare handlar värdet inte bara om gestaltning, utan om att få fram ett underlag som håller ihop mellan bygglov, projektering och genomförbar lösning.
BESTÄLLARPERSPEKTIV
Projekt som detta är särskilt relevant för byggföretag, fastighetsutvecklare och andra professionella beställare som behöver tydlig framdrift.
PROJEKTETS BETYDELSE
Klappträet 6 är ett typexempel på hur befintliga, underutnyttjade ytor kan transformeras till högkvalitativa bostäder. Vår vision var att visa potentialen i att återanvända och bygga om istället för att bygga nytt – ett hållbart förhållningssätt till urban förtätning. Genom att omvandla ett gammalt garage har vi skapat en fullt fungerande och yteffektiv bostad som inte kompromissar med varken design eller funktion. Projektet bevisar att compact living kan vara både exklusivt och hållbart, och det står som en inspiration för hur vi kan möta framtidens bostadsbehov genom att kreativt återanvända stadens dolda resurser.






.jpg&w=3840&q=75)














INTRESSERAD AV ETT
LIKNANDE PROJEKT?
Berätta om era idéer — vi hjälper er att förverkliga dem.
Särskilt relevant för byggföretag, fastighetsutvecklare och professionella beställare som söker ett team som kan bidra med både arkitektur, bygglov och projektering.