
Stora Kovik
Stockholm — 2025
Bygglov och projektering med fokus på genomförbarhet
Relevant för byggföretag, fastighetsutvecklare och professionella beställare
Tydliga underlag för nästa steg i projektet
OM PROJEKTET
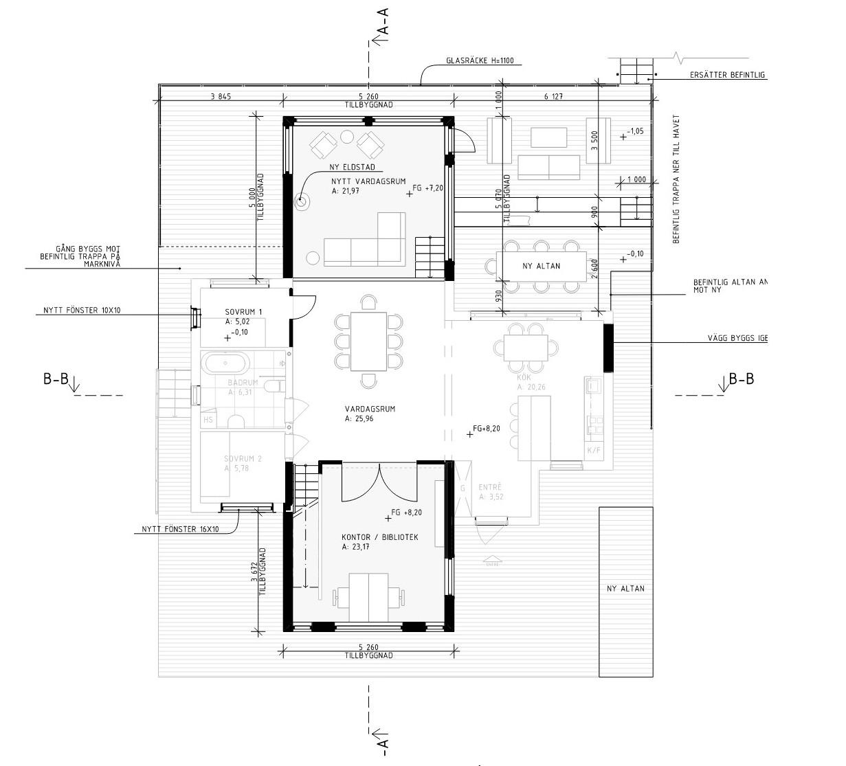
Stora Kovik är ett transformationsprojekt där en befintlig villa har genomgått en omfattande om- och tillbyggnation. Målet var att modernisera den äldre byggnaden och förena den med samtida arkitektur, med ett särskilt fokus på att maximera den natursköna omgivningen.
Genom strategiskt placerade tillbyggnader och stora glaspartier från golv till tak har vi skapat en sömlös övergång mellan inomhusmiljön och den magnifika utsikten över Stockholms Skärgård. Projektet balanserar respekt för den ursprungliga strukturen med en ny, djärv vision om ett modernt skärgårdsboende.
Söker ni hjälp med ett liknande projekt? Läs mer om våra tjänster, om bygglov och projektering eller kontakta oss direkt.
PROCESS
Det här projektet visar hur vi arbetar strukturerat från idé och analys till tydliga handlingar och nästa steg i genomförandet.
UNDERLAG
För beställare handlar värdet inte bara om gestaltning, utan om att få fram ett underlag som håller ihop mellan bygglov, projektering och genomförbar lösning.
BESTÄLLARPERSPEKTIV
Projekt som detta är särskilt relevant för byggföretag, fastighetsutvecklare och andra professionella beställare som behöver tydlig framdrift.
PROJEKTETS BETYDELSE
år vision för Stora Kovik var att skapa en dialog mellan det befintliga och det nya, där modern arkitektur varsamt omfamnar en äldre byggnad. Genom att addera tillbyggnader med generösa glaspartier har vi transformerat ett traditionellt inåtvänt hus till en öppen och ljus bostad som lever i symbios med den omgivande skärgårdsnaturen. Projektets främsta påverkan är hur det förändrar upplevelsen av platsen; gränsen mellan inne och ute suddas ut och utsikten blir en ständigt närvarande del av hemmets interiör. Stora Kovik visar hur man kan modernisera och utöka med respekt för historien, samtidigt som man skapar ett hem som fullt ut omfamnar sitt unika läge.



INTRESSERAD AV ETT
LIKNANDE PROJEKT?
Berätta om era idéer — vi hjälper er att förverkliga dem.
Särskilt relevant för byggföretag, fastighetsutvecklare och professionella beställare som söker ett team som kan bidra med både arkitektur, bygglov och projektering.