
Kv. Leoparden
Uppsala — 2024
Bygglov och projektering med fokus på genomförbarhet
Relevant för byggföretag, fastighetsutvecklare och professionella beställare
Tydliga underlag för nästa steg i projektet
OM PROJEKTET
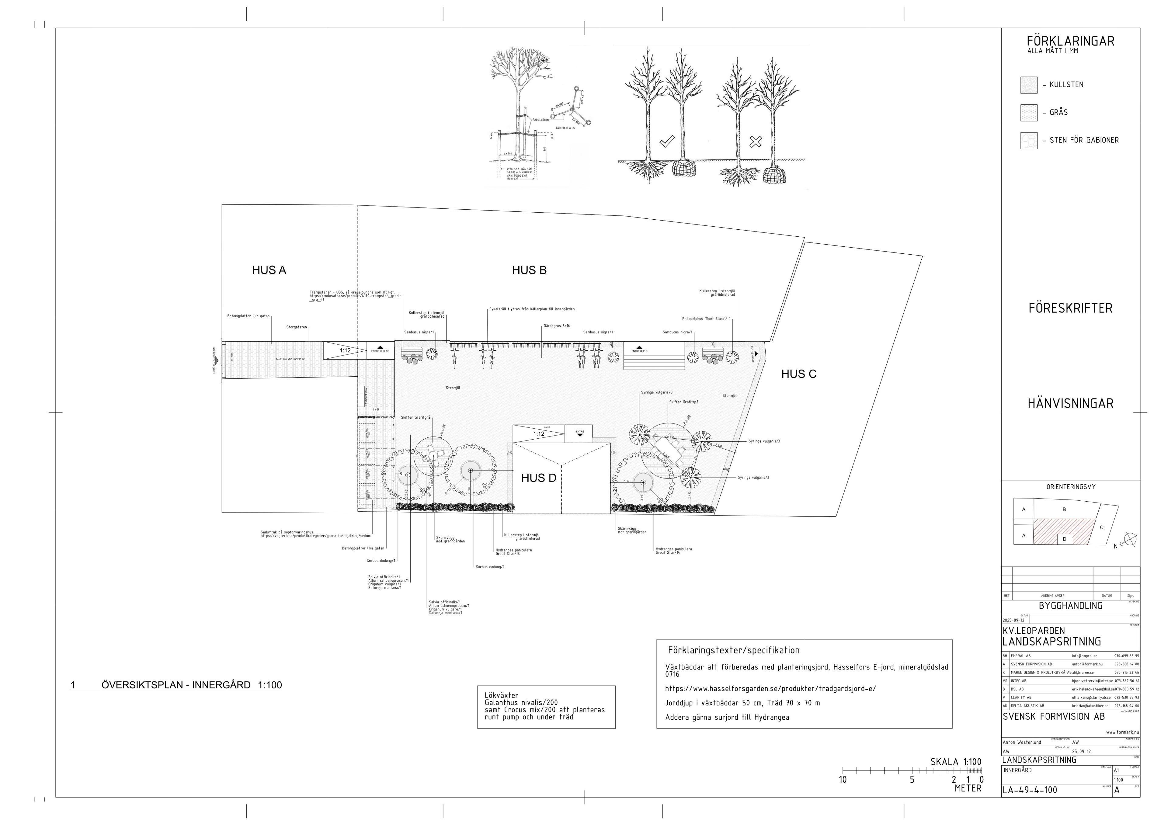
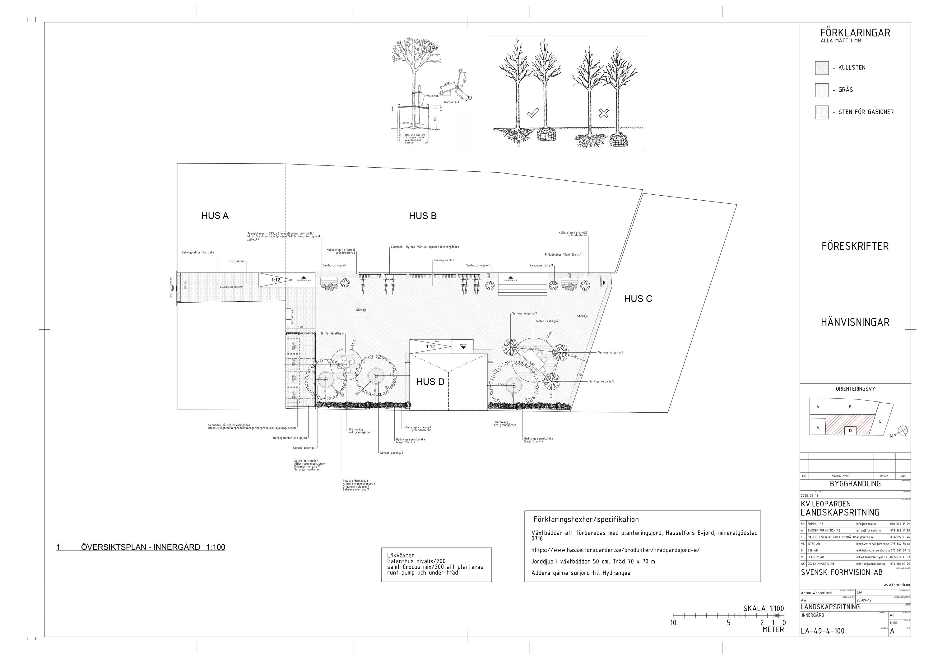
Kvarteret Leoparden är en kulturhistorisk byggnad i Stockholm som omvandlas till 16 moderna lägenheter. Projektet präglas av varsam renovering med bevarade arkitektoniska värden, kombinerat med hållbara och energieffektiva lösningar. FORMARK ansvarar för hela projekteringen, från bygglov till bygghandlingar. Färdigställande planeras till våren 2026.
Söker ni hjälp med ett liknande projekt? Läs mer om våra tjänster, om bygglov och projektering eller kontakta oss direkt.
PROCESS
Det här projektet visar hur vi arbetar strukturerat från idé och analys till tydliga handlingar och nästa steg i genomförandet.
UNDERLAG
För beställare handlar värdet inte bara om gestaltning, utan om att få fram ett underlag som håller ihop mellan bygglov, projektering och genomförbar lösning.
BESTÄLLARPERSPEKTIV
Projekt som detta är särskilt relevant för byggföretag, fastighetsutvecklare och andra professionella beställare som behöver tydlig framdrift.
PROJEKTETS BETYDELSE
Kv. Leoparden är ett viktigt kulturhistoriskt projekt som kombinerar bevarande av arkitektoniskt arv med moderna bostadslösningar. Genom att omvandla byggnaden till 16 hållbara lägenheter bidrar projektet till Stockholms bostadsutveckling samtidigt som det stärker områdets identitet och kulturvärde. Visionen är att skapa långsiktigt attraktiva hem med fokus på ljus, energioptimering och materialval med låg miljöpåverkan.



INTRESSERAD AV ETT
LIKNANDE PROJEKT?
Berätta om era idéer — vi hjälper er att förverkliga dem.
Särskilt relevant för byggföretag, fastighetsutvecklare och professionella beställare som söker ett team som kan bidra med både arkitektur, bygglov och projektering.